Refurbished Modern Medical/Office Space
- 225sqm
- Huge incentive- medical tenant
- 11 carparks
Huge landlord’s incentives for a Medical Centre tenant – not one Medical Centre in Braeside!
Landlord will contribute to refurbishment for medical tenant.
Ideally located on busy Boundary Road, just minutes from Lower Dandenong Road and the Mordialloc Freeway, this quality ground floor office space with dual access, solar panels, offers great incentives and flexible lease terms to the right tenant.
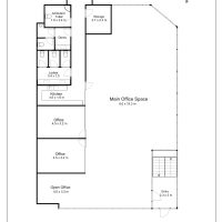
Property Highlights:
• 225sqm* of light-filled office space
• Offices and open-plan area
• Stylish polished concrete floors
• Kitchen amenities
• Front and rear access
• 11 on-site car parks
• Solar panels
• A/C
• Security alarm system
*Approximate
Positioned in a high-exposure location with excellent access, this versatile office space, Medical Centre ticks all the boxes. Mutiple carparks, abilbity to partition rooms and install required fittings.
Attractive lease incentives and flexible lease terms available – enquire today!









